2024년 3월 31일 입주자 모집공고가 나온 하남시 교산 푸르지오 더 퍼스트 아파트의 단지소개와 더불어 단위세대 평면도에 대해서 개인적인 관점에서 Review를 해보았습니다. 청약을 검토하는 분들에게 평형 선택에 있어 작은 도움이 될 수 있었으면 합니다.

*) 본 포스팅에 사용된 모든 정보와 이미지의 출처는 공식 분양 홈페이지입니다.
*) 내용을 확인하고 문서로 작성하는 과정 중 일부 오류가 있을 수도 있습니다.
*) 단지 설계 / 세대 평면 설계에 대한 의견은 개인적인 관점이 반영되어 있습니다.
단지 개요
교산 푸르지오 더 퍼스트 아파트는 경기도 하남시 하남교산지구 A2블록에 들어서며 지하 2층 지상 29층, 10개 동 규모로 들어서는 전용면적 51m2~59m2 소형세대 1150으로 구성 된 대단지아파트입니다.

입지 환경

단지 배치도

커뮤니티
대단지 아파트답게 다양한 커뮤니티 시설을 제공합니다.

세대 설계 특징
- 창호의 난간은 일반 철제난간입니다. 최근 단지 고급화 측면에서 철제 난간 대신 투명 유리난간을 사용하는 사례가 많은데 이번 분양현장에서는 적용되지 않았습니다.
- 침실 2, 침실 3의 창은 반창을 적용하였습니다. 반창을 적용하는 경우 책상 등을 창쪽에 붙일 수 있어 공간 활용은 좋으나 개방감, 채광, 환기, View면에서 불리합니다. 최근 아파트들이 단열 때문인지 원가절감 때문인지 침실에 반창을 적용하는데 여지없이 그대로 추세를 따르고 있습니다.
- 주방창이 수납공간 확보를 위해 상부를 수납장으로 하고 하부에 작은 창을 달아 개방감, 환기면에서 아쉬움을 있으며 일부 타입의 경우 주방창이 없습니다.
- 부부욕실, 공용욕실에 창이 없는 구조입니다. 최근 아파트들은 모두 구조적으로 욕실을 발코니 쪽이 아닌 내부에 위치함으로써 창을 내기가 어려운 구조를 사용합니다. 일반적으로 기계식 환기시설이 옵션으로 제공되지만 아쉬운 부분입니다.
- 층고는 따로 언급이 없는 걸 보아 일반적인 수준-기준층 기준 2 m30-으로시공이 될 것으로 보입니다.
51A Type
21평~22평형 세대입니다. 거실과 모든 방이 전면을 향한 판상형 3 Bay 평면구조입니다.
워낙 작은 소형 평형대라 방 3세 개를 제공하지 못하고 방은 안방포함 2개만 제공되며 부부욕실 또한 샤워부스가 빠진 세면대와 변기만 제공하는 기본적인 형태로 나왔습니다. 평형대를 감안하면 어쩔 수 없어 보이며 이 작은 평형대에서 꼭 욕실이 2개 필요한지 의문이 들긴 합니다. 침실이 2개밖에 안되지만 각각의 침실은 동평형대 침실보다 더 큰 폭을 가진 것으로 보입니다. 즉 방세개를 만들 공간은 없어 방 하나가 없어진 대신 나머지 방 둘의 폭이 늘어나 조금 더 큰 방이 된 것으로 보입니다.
소형평형임에도 불구하고 안방 드레스룸 공간은 평형대 대비(이 정도 평형대에서 드레스룸 공간은 아예 제공되지 않습니다.) 아주 넉넉하게 나왔으며 현관 수납공간은 한쪽 신발장, 한쪽 제법 깊이가 있는 대형 팬트리 구조로 아주 넉넉합니다. 주방공간은 평형대 대비 아주 여유 있게 마련되었으며 식탁자리도 폭과 깊이가 충분하여 여유가 있어 보입니다.
아주 널찍한 다용도실 공간을 제공하는데 네모 반듯한 공간이었으면 더할 나위 없었을 텐데 기둥이 모서리를 크게 차지하여 공간활용성이 조금 떨어지는 단점이 보입니다. 안방의 발코니 역시 대피공간과 실외기실 때문에 전체 폭의 반도 못써서 크게 활용성은 없어 보입니다.

51B Type
21평~22평형 세대입니다. 거실과 안방이 전면을 향한 타워(탑상) 형 평면구조입니다.
소형 평형임에도 불구하고 거실이 2면 개방형으로 설계한 점이 눈에 확 띕니다. 아주 좋습니다. 개방감과 환기면에서 참 좋은 선택입니다. 주방도 평형을 감안하면 넉넉한 사이즈를 보이고 있습니다.
워낙 작은 소형 평형대라 방 3세 개를 제공하지 못하고 침실하나를 작은 알파룸으로 대체하였으며 부부욕실 또한 샤워부스가 빠진 세면대와 변기만 제공하는 기본적인 형태로 나왔습니다. 평형대를 감안하면 어쩔 수 없어 보이며 이 작은 평형대에서 꼭 욕실이 2개 필요한지 의문이 들긴 합니다. 침실 하나가 알파룸으로 대체된 대신 침실 2가 거의 안방 수준의 크기를 자랑합니다. 평형대 대비 아주 넉넉한 사이즈의 방입니다.
소형 평형대에 맞지 않게 현관 수납공간은 한쪽 신발장, 한쪽 창고 수준의 대형 팬트리 구조로 아주 넉넉합니다. 침실대신 제공되는 알파룸은 사이즈의 한계로 온전한 방으로 쓰기는 어려워 대형 창고나 옷방등으로 사용가능할 것 같습니다. 안방 드레스룸공간도 협소하여 옷방이 적격일 듯싶습니다.
아주 널찍한 다용도실 공간을 제공하는데 네모 반듯한 공간이었으면 더할 나위 없었을 텐데 기둥이 모서리를 크게 차지하여 공간활용성이 조금 떨어지는 단점이 보입니다. 안방의 발코니 역시 대피공간과 실외기실 때문에 전체 폭의 반도 못써서 크게 활용성은 없어 보입니다.

55A Type
일반적인 23평~24평 세대입니다. 전형적인 판상형 4 Bay 평면 구조를 적용하였습니다.
소형 평수임에도 대형 현관창고를 제공하는 점. 안방 드레스룸이 아주 넉넉해 보이는 점이 좋아 보입니다. 대신 평형대가 평형대인지라 온전한 방세개가 아닌 방 2개에 방보다 작은 사이즈의 알파룸을 제공하는 형태가 되었습니다. 또한 부부욕실도 세면대와 변기만 준비되었고 샤워부스가 없습니다. 어쩔 수 없는 공간의 한계인 듯싶습니다.
알파룸은 온전한 방으로 쓰기 힘들기 때문에 침실 2와 합쳐서 쓸 수 있는 옵션이 있어야 할 것 같습니다. 창고로 쓰기에는 공간적인 낭비가 있을 것 같고 애매합니다. 창고보다는 옷방으로 더 어울릴 수도 있겠습니다. 방이 2개밖에 없는 구조인데 굳이 욕실을 2개 만들었어야 했을까 하는 의문이 듭니다. 부부욕실을 과감하게 없애고 다른 공간을 확장하는 방법은 어땠을까 하는 생각이 듭니다.
거실과 주방, 안방의 크기 자체는 평형대를 생각할 때 적정한 혹은 그 이상의 크기를 보이고 있어 만족스럽습니다. 거실과 알파룸을 합쳐 광폭을 가진 거실로 아주 넓게 쓰는 게 어떨까 생각했는데 알파룸과 거실의 벽면이 내력벽으로 보여 합치는 게 불가능할 것으로 보입니다. 많이 아쉽습니다.

58A Type
일반적인 23~25평형 세대입니다. 판상형 구조인데 거실과 주방이 일렬로 이어져 맨 끝으로 이동하고 그 후면에 안방이 위치한 특이한 구조입니다. 이러한 구조 덕분에 안방은 창이 없습니다. 가장 많이 사용하는 곳이 안방인데 창이 후면에 위치하여 많이 답답한 느낌이 들 것 같습니다. 대신 안방 자체의 사이즈도 넉넉해 보이고 드레스룸 공간도 평형대에 비해 아주 넉넉한 크기를 가지고 있습니다.
주방은 공간 자체 만으로는 넉넉해 보이나 거실과 연계된 모습이라 경계구분이 잘 되지 않습니다. 식탁을 놓을 자리가 애매한 듯 보입니다. 식탁을 조리공간과 구분 지어 놓으면 거실을 침범하는 형태가 될 것으로 보입니다.
현관 신발장과 반대편 팬트리 구조도 좋아 보이며 다용도실은 복도에 위치한 특이한 모습인데 머 괜찮습니다. 외출 후 현관에 들어서면서 양말이나 옷 바로 세탁기에 던져 넣기 편리할 것으로 보입니다.

59A Type
전형적인 판상형 4 Bay 평면 구조입니다.
25평형 세대임에도 불구하고 현관에 창고 수준의 팬트리를 제공하는 것이 눈에 확 띕니다. 아마 이번 현장의 핵심포인트가 될 것 같습니다.
소형세대임에도 안방드레스룸 공간은 적절하게 크기를 확보하고 있고 다른 평형도 마찬가지겠지만 안방 발코니는 실외기실/대피공간이 전체 폭을 반이상 차지하고 있어 크게 공간활용성이 없어 보입니다. 부부욕실의 샤워부스/다용도실 발코니도 기둥이 같이 자리하고 있어 공간이 조금 희생이 있습니다.
주방크기도 넉넉해 보입니다. 폭도 적당하고 깊이도 있어 보입니다. 식탁자리는 여유 있을 것 같습니다. 수치가 기재되지 않아 어렵지만 거실, 각 침실등의 공간은 모든 세대가 해당 평형에 걸맞은 적정크기를 가질 거라 예상됩니다.

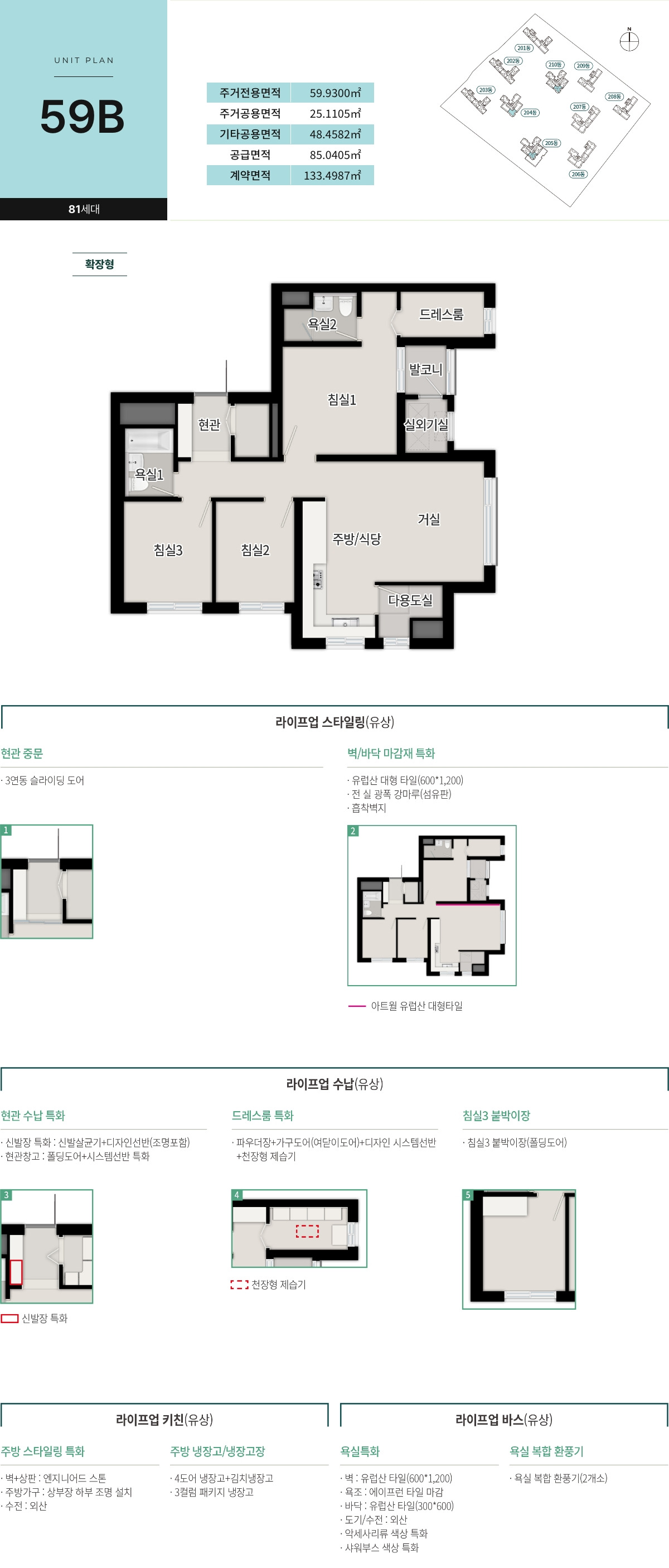
59B Type
거실과 안방이 전면을 향한 타워형(탑상형) 평면 구조에 안방측면에 서비스면적을 제공하고 이를 확장하여 드레스룸 공간을 추가 제공하는 구조를 가졌습니다. 타워형 구조의 단점이 안방 후면에 공간확보가 어려워 드레스룸 공간을 제대로 만들 수 없다는 점인데 측면 발코니 확장 특화설계를 선택해 이를 극복하였습니다. 덕분에 소형세대임을 감안해도 아주 넉넉한 크기의 드레스룸 공간을 제공합니다.
나머지 부분은 전형적인 타워형 구조의 모습을 띄고 있습니다. 역시 현관에 소형평형대에서 찾아보기 힘든 창고 수준의 팬트리를 제공하는 것이 눈에 띕니다. 마찬가지로 안방 샤워부스/다용도실 발코니는 기둥 때문에 공간활용성이 아쉽고 안방발코니는 대피공간/실외기실 때문에 제대로 된 폭을 확보하지 못해 크게 의미는 없어 보입니다.

59C Type
판상형 4 Bay 평면으로 거실과 주방이 맨 끝으로 이동하여 거실을 2면 개방형 구조로 특화하였습니다. 개방감이 한층 뛰어날 것으로 보이며 거실 폭에 맞먹는 폭을 가진 주방과 함께 공간감이 한층 뛰어날 것으로 생각됩니다.
평형대 대비 무난한 안방 드레스룸 공간을 제공하며 샤워부스는 조금 아쉽습니다. 안방 발코니는 대피공간/실외기실 때문에 전체 폭의 절반만 할당되어 큰 활용성은 없어 보입니다. 현관은 평형대 대비 상당히 큰 창고 수준의 팬트리를 제공합니다. 공용욕실 무난합니다. 다용도실은 네모반듯해서 공간활용성이 좋아 보입니다.
이 평면 구조는 무엇보다 거실 2면 개방과 거실폭에 맞먹는 폭을 가진 넓은 주방공간이 핵심이 될 것 같으며 많은 분들이 선호할 걸로 예상됩니다.(모델하우스에 시공된 이유가 있겠지요..)

59D Type
판상형 구조 평면인데 침실 2,3이 후면에 위치하여 4 Bay가 아닌 2 Bay가 되었습니다. 침실 2,3이 북향에 가까워 해가 잘 들지 않는 점이 큰 단점으로 보입니다.
안방은 25평형 소형세대임에도 불구하고 폭이 넉넉해 보이고 꽤 여유 있는 드레스룸공간을 제공합니다. 안방 샤워부스와 다용도실 발코니는 기둥 때문에 공간활용성이 다소 떨어지겠습니다. 안방 발코니는 대피공간/실외기 실아 폭의 절반을 차지하고 있어 활용도가 많이 떨어지겠습니다.
주방공간 무난하며 현관은 평형대 대비 아주 넉넉한 팬트리를 제공하는 점은 좋습니다.

59E Type
59C와 같은 거실과 주방이 우측 끝으로 이동한 형태의 판상형 4 Bay 평면 구조인데 59C와 달리 거실이 2면 개방형이 아닌 차이가 있습니다. 59C가 경쟁률이 너무 뛰어나다면 모를까 굳이 59C 놔두고 59E를 택할 이유가 없을 것 같습니다. 세대 구조만 보면 가격차이가 얼마나 날지 모르겠습니다만 59C가 훨씬 경쟁력 있는 평면입니다.
거실 2면 개방형 구조 빼고는 59C Type과 거의 같습니다.

59F Type
거실과 안방이 전면을 향한 전형적인 타워(탑상) 형 평면 구조입니다.
일반적인 타워형의 경우 안방 후면과 현관 쪽 공간에 복도등과 연결되면서 공간의 여유가 없어 안방 드레스룸 혹은 현관 수납공간등이 아쉬울 때가 많습니다. 이럴 때 특화설계를 하여 안방폭을 늘려(서비스발코니 제공/확장) 안방 끝벽에 맞닿은 곳에 드레스룸 공간을 마련하는 등의 대책을 마련하곤 하는데 이런 특화설계 없이 소형평수임에도 적지 않은 사이즈의 안방 드레스룸, 현관 팬트리등을 잘 반영해 놓았습니다. 이 점은 아주 좋아 보입니다.
안방 샤워부스가 작은 점, 다용도실 발코니 공간활용성이 떨어지는 점은 아쉬우며 나머지 공간은 전형적인 타워형 구조를 따르고 있어 무난합니다.

59G Type
59C Type과 과 같은 거실 2면 개방형 판상형 평면 구조이나 침실 2,3이 전면 남향이 아닌 후면에 위치하여 북향에 가까운 향을 가지고 있습니다. 대체적으로 구조는 마음에 드는데 향 때문에 불호가 있을 것으로 예상합니다.
.
거실과 주방이 맨 좌측에 위치하여 거실 2면 개방 구조로 개방감이 뛰어나겠습니다. 주방폭이 거실폭과 같은 크기를 가지면서 25평형 소형세대임을 감안하면 아주 넉넉한 공간감을 보여줍니다. 다용도실은 기둥 때문에 살짝 공간활용성이 애매해졌습니다. 실외기/대피공간은 필요이상으로 넉넉해 보입니다.
복도를 따라 대형 복도팬트리를 제공하는 점이 눈에 띕니다. 보통 25평형 세대에서 찾아보기 힘든 사이즈의 팬트리입니다.
침실 2,3이 후면에 위치하여 해를 보기 어렵다는 단점이 눈에 띕니다. 현관 및 욕실공간은 넉넉하고 무난합니다.
안방은 별도의 발코니가 없으며 발코니 확장된 영역에 드레스룸 공간이 위치하여 해당 평형 세대에서 찾아보기 힘든 사이즈의 드레스룸 공간을 제공합니다. 드레스룸이 커서 좋지만 드레스룸 폭이 안방 폭을 많이 차지하여 안방 창이 협소해졌습니다. 개방감이 살짝 아쉽습니다. 드레스룸 영역을 안방으로 확장하고 드레스룸 위치를 거실 쪽 벽으로 옮겼으면 더 좋지 않았을까 생각해 봅니다. 안방 욕실은 샤워부스가 살짝 사이즈가 아쉬운데 워낙 평형에 비해 공간을 많이 뽑아낸 지라 수긍할 만합니다.

총평
[]
'부동산 > 분양아파트 분석' 카테고리의 다른 글
| LH 부천대장 A7블록 단지 소개 및 평면도 Review (0) | 2025.04.30 |
|---|---|
| 부산 장안지구 우미린 프리티어 단지 소개 및 평면도 Review (0) | 2025.04.30 |
| 힐스테이트 용인마크밸리 단지 소개 및 평면도 Review (0) | 2025.04.27 |
| 김포 풍무역 롯데캐슬 시그니처 단지 소개 및 평면도 Review (0) | 2025.04.27 |
| 북수원이목지구 디에트르 더 리체II 단지 소개 및 평면도 Review (0) | 2025.04.25 |
댓글