영종하늘도시 한라비발디 소개
안녕하세요.
하늘도시 아파트 소개 이번에는 한라비발디입니다.
영종하늘도시에서 유일한 전체 38평 이상 - 2기에 입주한 스카이시티자이 아파트도 35평, 38평, 43평의 중대형 세대로 구성된 아파트이기는 합니다. - 대형 평형으로 구성된 대단지 아파트입니다. 단지 뒤편으로 초등학교를 끼고 있어 초품아 아파트라고 할 수 있으며 하늘도시 도서관도 인접해 있습니다. 인근 중, 고등학교도 도보 통학권입니다. 힐스테이트와 마찬가지로 현재 하늘도시 중심상권에 해당하는 지역을 바로 정면 길 건너에 두고 있어 상권 이용이 매우 편리한 위치에 있어 입지적으로 탁월한 아파트라 볼 수 있습니다.



1. 아파트 개요.
전체 전용면적 126m2 38평 이상으로 구성된 1365 세대 대단지로 건폐율 11프로 , 용적률 251%로 용적률이 다소 높은 고밀도 아파트이지만 건폐율이 낮아 답답함이 없는 단지 구성을 가진 아파트입니다. 주차대수는 2412대로 세대당 1.76로 일반적으로 요즘 분양하는 동 평형으로 구성된 아파트 단지보다 좀 더 많은 수준입니다. 하늘도시에서 최초 입주한 1단계 아파트 중의 하나로 지역난방방식을 사용하는 몇 안 되는 아파트입니다. 하늘도시 1단계 이후의 아파트는 지역난방을 공급하는 인천공항에너지의 경영난으로 개별난방방식으로 공급됩니다.

2. 단지 구성 / 아파트 특징
총 11개 동으로 구성되었으며 용적률이 다소 높은 고밀도 아파트이지만 건폐율이 아주 낮아 동 간 거리가 넉넉하여 일조권을 침해받는 저층이 생각보다 적습니다. 아래 그림에서 동 표기가 100번대로 표기되었는데 하늘도시 동호수 표기 규칙에 의거 100번대가 920번대로 변경되었습니다. 축구장 5개 크기의 조경면적을 자랑하며 커뮤니티 시설도 대형 평수 아파트답게 아주 잘 되어 있습니다. 일부 고층의 경우 건물 사이로 바다 조망도 가능하나 바다 쪽 특별계획구역의 간물들이 초고층으로 들어서면 조망을 잃게 됩니다.
38평형(전용 101m2, 공급 126m2) A, B,C Type과 43평형(전용 115m2,공급 142m2) A,B Type, 51 평형(전용 139m2, 공급 171m 2) Type, 펜트하우스 세대 71평형과 77평형으로 구성됩니다.


커뮤니티 시설은 헬스장, 독서실, 골프 연습장, 비즈니스룸, 문고, 휴게실 등 등 일반적인 수준 이상을 갖추고 있으나 대형 평수로 구성된 대단지임을 감안할 때 특화시설이 없어 조금 아쉬운 편입니다.

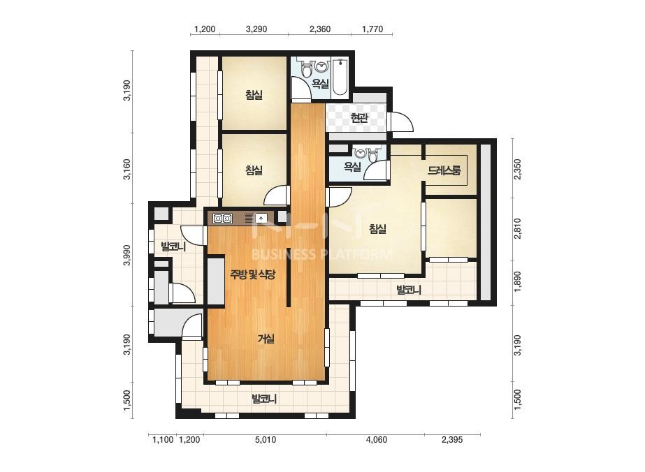
3. 평면 구성
LDK구조의 타워형 Type과 4 Bay 판상형 타입, 펜트하우스형 평면 등으로 구성되어 있으며 요즘 분양하는 아파트처럼 현관 팬트리, 주방 팬트리, 복도 팬트리 등 수납공간을 많이 제공하는 구조는 아니지만 발코니 확장을 통한 서비스면적을 극대화하여 거실, 침실, 주방, 현관, 화장실, 드레스룸 뭐 하나 가를것 없이 아주 큼직큼직하게 나온 평면을 제공합니다
타워형 타입의 경우 2면 발코니 확장을 통해 거실폭이 평형에 따라 6.3m ~ 7.5m에 이르는 최근의 동평 형대 아파들과 비교할 수 없는 공간감을 제공하며, 모든 평형들의 각 침실의 길이와 폭도 최근에 분양하는 아파트 대비 아주 넉넉한 수치를 자랑합니다..
하늘도시에서 유일하게 펜트하우스 특화 평면으로 71 평형, 77평형을 포함하고 있습니다.
















4. 분양가 및 현재 시세
2009년 가을에 분양을 하여 2012년 10월 30일에 입주를 시작한 아파트로 당시 분양가는 평당 1100 정도였습니다. 영종도 인프라 부족 및 건설경기 침체와 대형 평수로 구성된 아파트라서 대량 미분양/미입주 사태가 발생하면서 건설사에서 20% 이상 떨이 판매한 흑역사가 있는 아파트입니다.
그 후로도 계속 경기침체와 부족한 영종도 인프라와 섬이라는 인식으로 약 8년 이상을 분양가 아래에서 시세를 형성하던 중 최근 수도권 아파트 급등세와 영종의 개발계획 가시화로 수도권 아파트에 비해 상대적으로 저렴하고 자연친화적인 도시로 입소문 나고 하늘도시의 대형 평수 희소성으로 평당 1600만 원을 상회하고 있습니다.
2021.12.29 - [부동산/입주아파트 분석] - 영종하늘도시 영종 힐스테이트 소개
2021.12.28 - [부동산/입주아파트 분석] - 영종하늘도시 한양 수자인 소개
2021.12.27 - [부동산/입주아파트 분석] - 영종하늘도시 우미린1단지 소개
2021.12.21 - [부동산/입주아파트 분석] - 영종하늘도시 우미린 2단지 소개
'부동산 > 입주아파트 분석' 카테고리의 다른 글
| 검단신도시 대방 디에트르 더 펠리체 (노블랜드 1차) 단지소개 / 평면도 분석 (0) | 2022.01.02 |
|---|---|
| 검단신도시 우미린 더 시그니처 (더 퍼스트) 단지소개 / 평면도 분석 (0) | 2022.01.02 |
| 영종하늘도시 영종 힐스테이트 소개 (0) | 2021.12.29 |
| 영종하늘도시 한양 수자인 소개 (0) | 2021.12.28 |
| 영종하늘도시 우미린1단지 소개 (0) | 2021.12.27 |
댓글